Zur Startseite
Mietobjekte
Alle Mietobjekte
Gastronomie / Hotel
Büro / Praxen
Wohnung
Hallen / Produktion
Spezialobjekte
Einzelhandel
Parken
Investment
Ankaufsprofil Office
Ankaufsprofil Hotel
Ankaufsprofil Retail
Ankaufsprofil Wohnen
Ankaufsprofil Industrie
Ankaufsprofil International
Unternehmen
Redevelopment
Investment Management
Asset Management
Property Management
Karriere
Stellenangebote
News
Kontakt
Hotline
0800 200 80 44
EN
Home
Hallen/Produktion
Hallen/Produktion
Kauf und Miete
Miete
Alle Nutzungsarten
Gewerbe
Alle Objektarten
Büro/Praxis
— Bürofläche
— Bürohaus
— Praxis
— Praxisfläche
Einzelhandel
— Ladenlokal
— Verbrauchermarkt
— Verkaufsfläche
Gastgewerbe
— Bar
— Discothek
— Gastronomie
— Weitere Beherbergungsbetriebe
Hallen/Produktion
— Halle
— Lager
— Lager mit Freifläche
— Lagerfläche
— Speditionslager
— Werkstatt
Parken
— Stellplatz
Sonstige
Wohnung
— Dachgeschosswohnung
— Etagenwohnung
Alle Orte
Hamburg
Hilden
Lübeck
Pinneberg
Alle Nutzungsarten
Büro/Praxen
selected='selected'
Hallen/Produktion
Einzelhandel
Gastronomie/Hotel
Wohnung
Spezialobjekt
Parken
Alle Orte
Brühl
Dortmund
Düsseldorf
Essen
Frankfurt am Main
Hamburg
Hilden
Köln
Lübeck
München
Offenbach am Main
Olching
Pinneberg
Stuttgart
Wuppertal
0
Merkliste
5 km
10 km
25 km
50 km
100 km
200 km
500 km
16 Treffer anzeigen
0
Merkliste
Suche zurücksetzen
merken
Nienhöfener Straße 29-37, 25421 Pinneberg
Objektart:
Halle, Hallen/Produktion
Gesamtfläche:
15.000,00m²
Objektdetails
merken
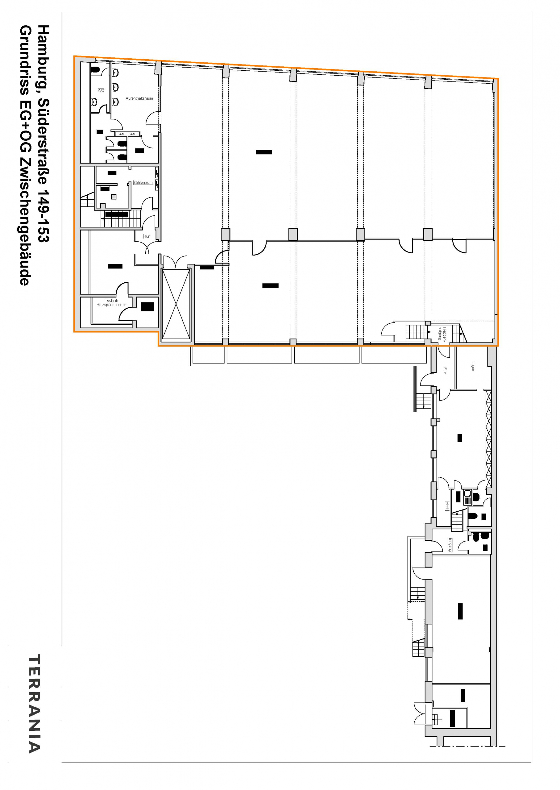
Süderstraße 149-153, 20537 Hamburg
Objektart:
Hallen/Produktion, Werkstatt
Gesamtfläche:
560,30m²
Miete:
3.922,10EUR
Objektdetails
merken
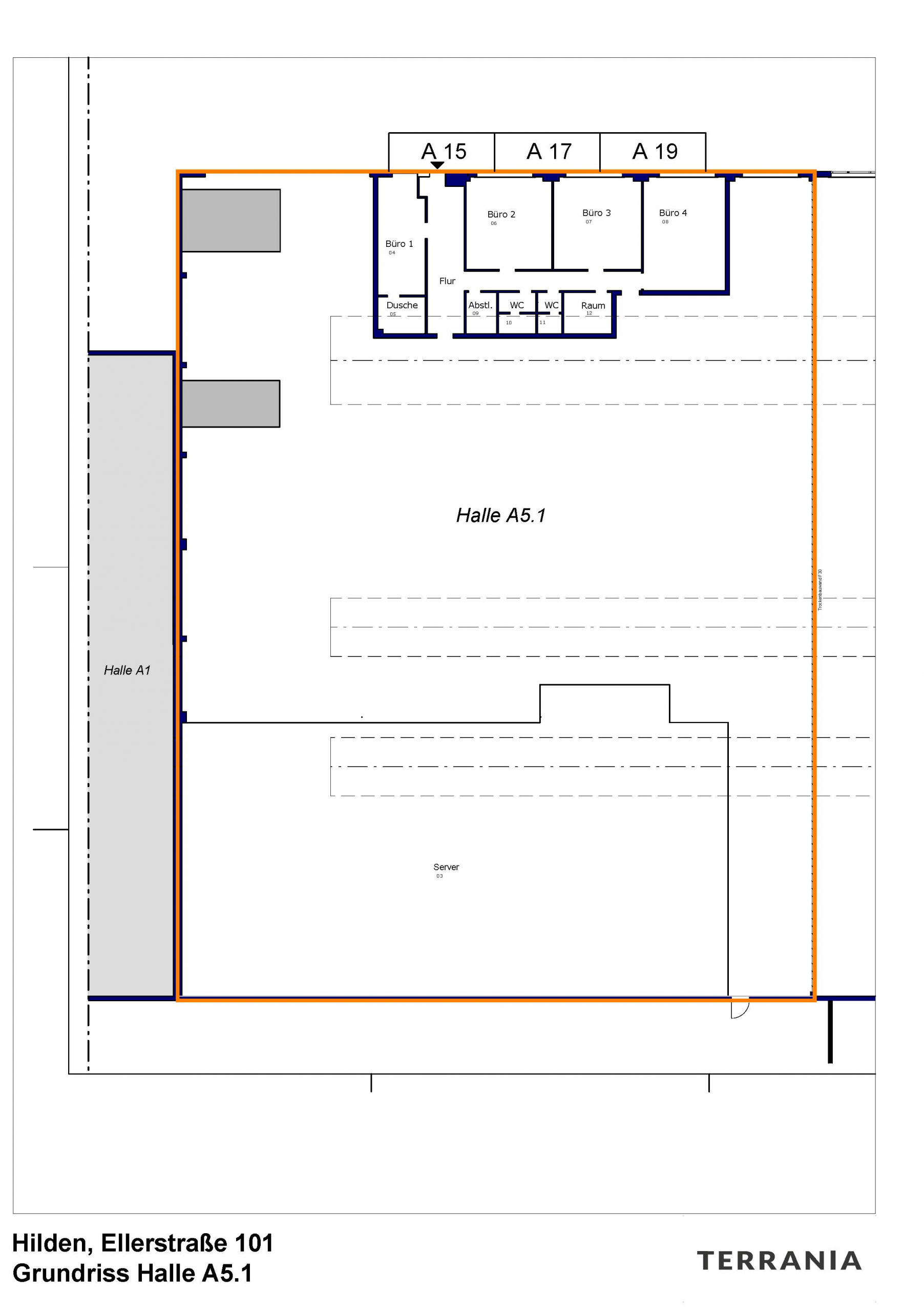
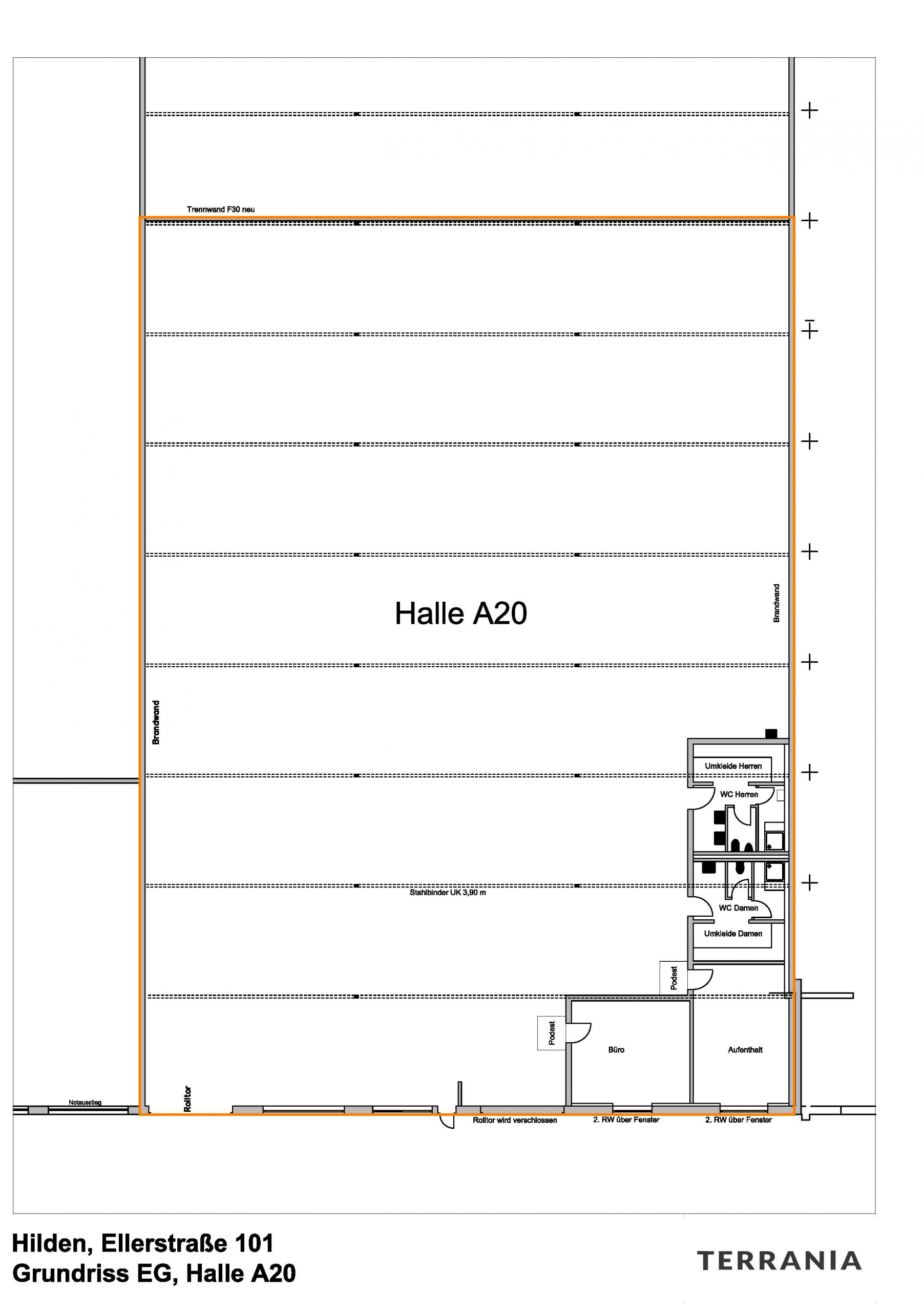
Ellerstrasse 101, 40721 Hilden
Objektart:
Hallen/Produktion, Lager
Gesamtfläche:
1.602,72m²
Miete:
13.491,37EUR
Objektdetails
merken
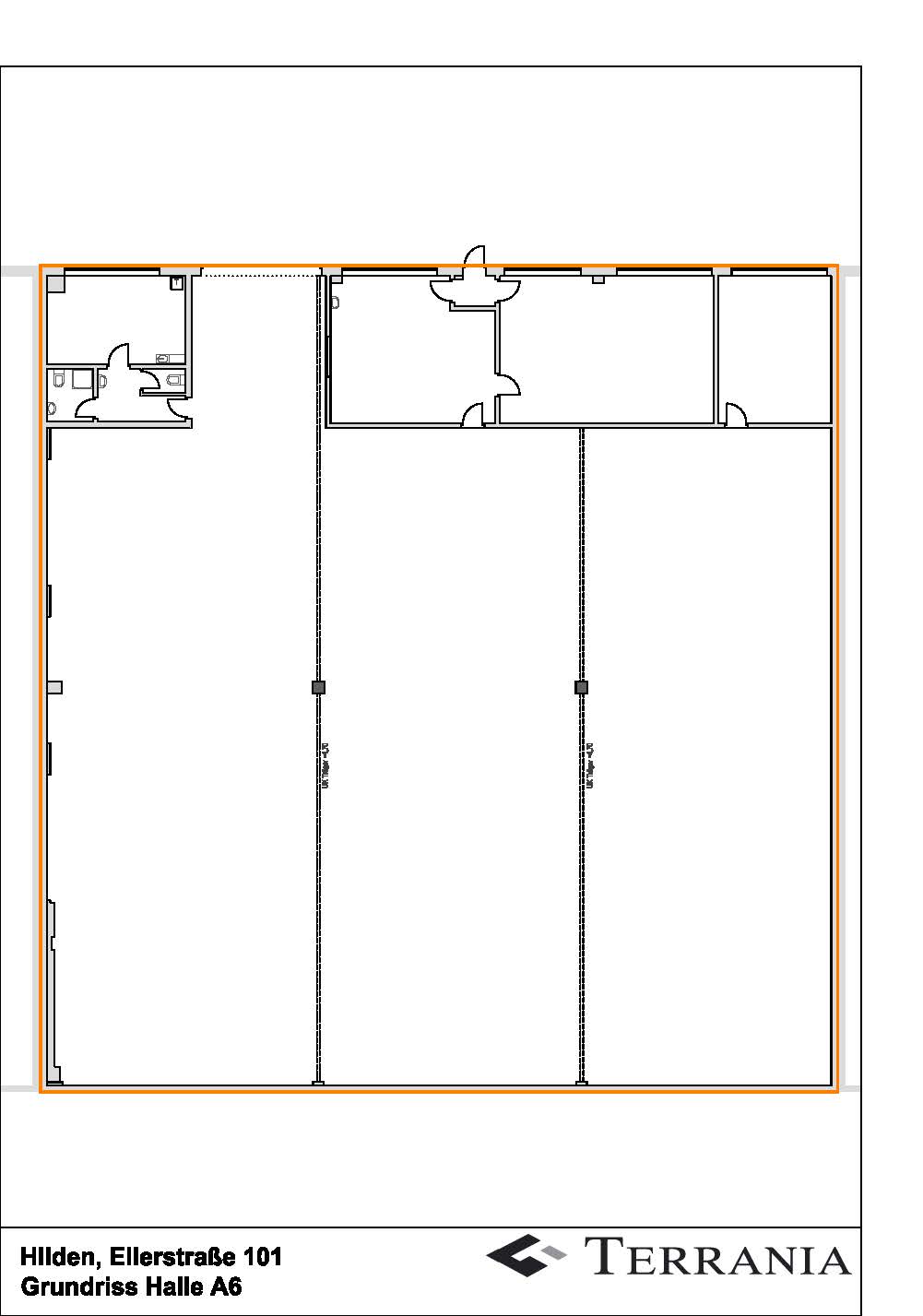
Ellerstrasse 101, 40721 Hilden
Objektart:
Hallen/Produktion, Lagerfläche
Gesamtfläche:
1.437,08m²
Miete:
7.185,40EUR
Objektdetails
merken
Ellerstrasse 101, 40721 Hilden
Objektart:
Hallen/Produktion, Lager
Gesamtfläche:
1.794,60m²
Miete:
9.870,30EUR
Objektdetails
merken
Ellerstrasse 101, 40721 Hilden
Objektart:
Hallen/Produktion, Lager
Gesamtfläche:
886,60m²
Miete:
4.876,30EUR
Objektdetails
merken
Nienhöfener Straße 29-37, 25421 Pinneberg
Objektart:
Halle, Hallen/Produktion
Gesamtfläche:
5.320,00m²
Objektdetails
merken
Ellerstraße 101, 40721 Hilden
Objektart:
Hallen/Produktion, Speditionslager
Gesamtfläche:
2.676,44m²
Miete:
10.438,12EUR
Objektdetails
merken
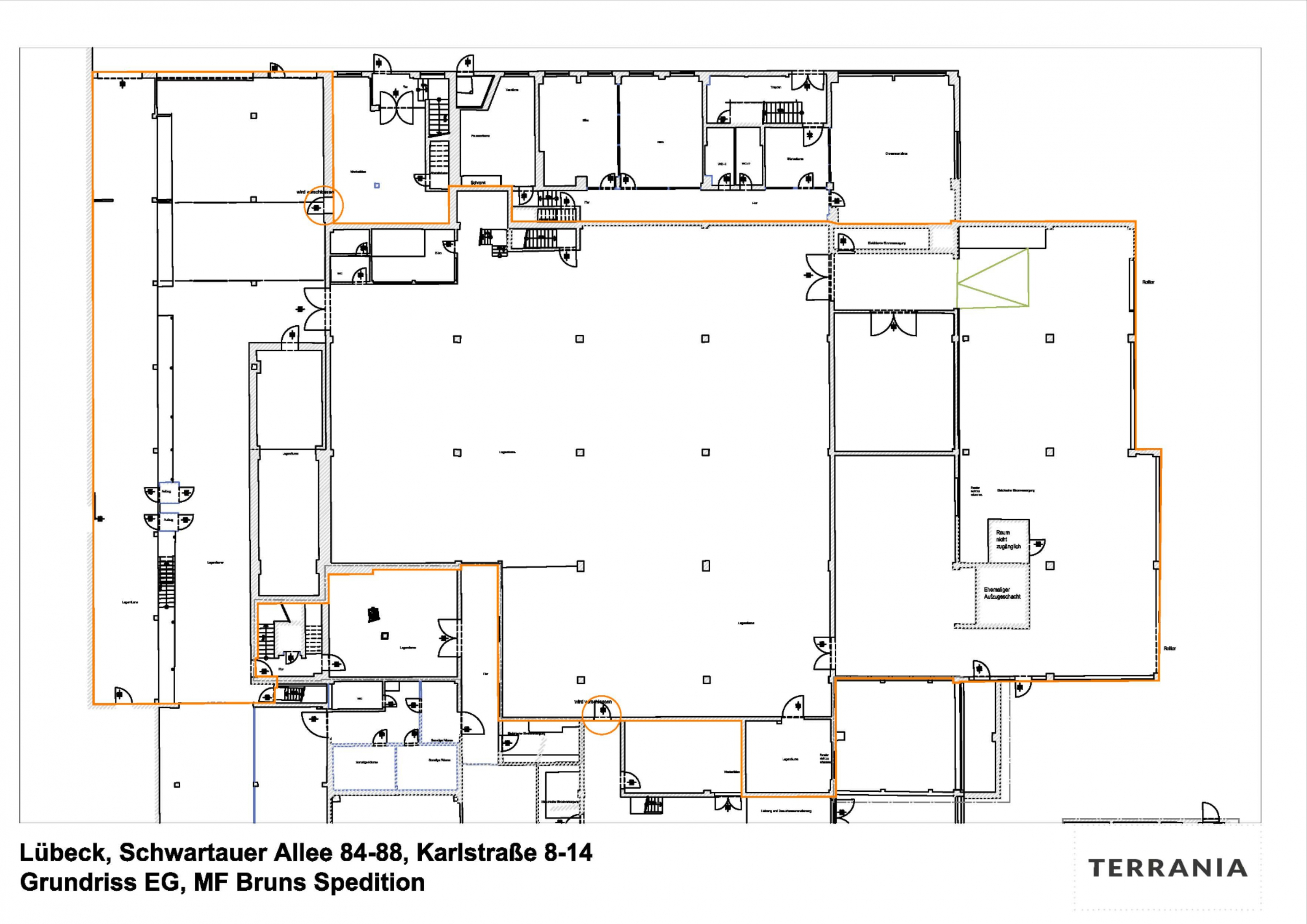
Karlstraße 8-14, 23554 Lübeck
Objektart:
Hallen/Produktion, Lager mit Freifläche
Gesamtfläche:
1.868,88m²
Miete:
10.278,84EUR
Objektdetails
merken
Nienhöfener Straße 29-37, 25421 Pinneberg
Objektart:
Halle, Hallen/Produktion
Gesamtfläche:
2.000,00m²
Objektdetails
merken
Süderstraße 149-153, 20537 Hamburg
Objektart:
Hallen/Produktion, Werkstatt
Gesamtfläche:
557,96m²
Miete:
5.468,01EUR
Objektdetails
merken
Nienhöfener Straße 29-37, 25421 Pinneberg
Objektart:
Halle, Hallen/Produktion
Gesamtfläche:
20.335,00m²
Objektdetails
Seite
1
2
Rufen Sie uns an
Bitte kontaktieren Sie uns